新築一戸建て 船橋市浜町1丁目
所在地
船橋市浜町1丁目
5,298万円
33.74坪
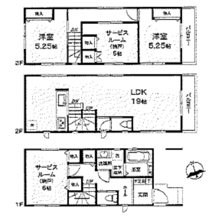
4LDK
複数線利用可能です☆
ららぽーと至近です☆生活環境良好です☆
月々の
支払例
支払例
万円
年
%
円
※京葉銀行/借入金5,298万円、返済期間35年、金利0.680%新変動金利)の場合
※審査により金利は変わる可能性があります。
物件概要
- 交通
-
京成本線 船橋競馬場駅 まで 徒歩8分
京成本線 大神宮下駅 まで 徒歩10分
京葉線 南船橋駅 まで 徒歩13分
- 接道状況
- 南東側 公道4m
- 土地面積
- 65.62㎡ (19.85坪)
- 建物面積
- 111.57㎡ (33.74坪)
- 築年数
- 2026年 (令和8) 1月 完成予定
- 建ぺい率
- 60%
- 容積率
- 160%
- 土地権利
- 所有権
- 構造および階数
- 木造 地上3階建
- 小学校区
- 中学校区
- 私道負担
- 地目
- 宅地
- 現況
- 建築中
- 引渡時期
- 期日指定 2026年1月
- 駐車場
- 上水道
- 公共
- 下水道
- 公共
- ガス
- 都市ガス
- 都市計画
- 市街化区域
- 用途地域
- 1種住居
- 設備・条件
- システムキッチン、食器洗浄乾燥機、シャンプードレッサー、洗浄便座、浴室乾燥機、複層ガラス、モニタ付インターホン、床下収納、トイレ2箇所
- 備考
- 取引態様
- 仲介

